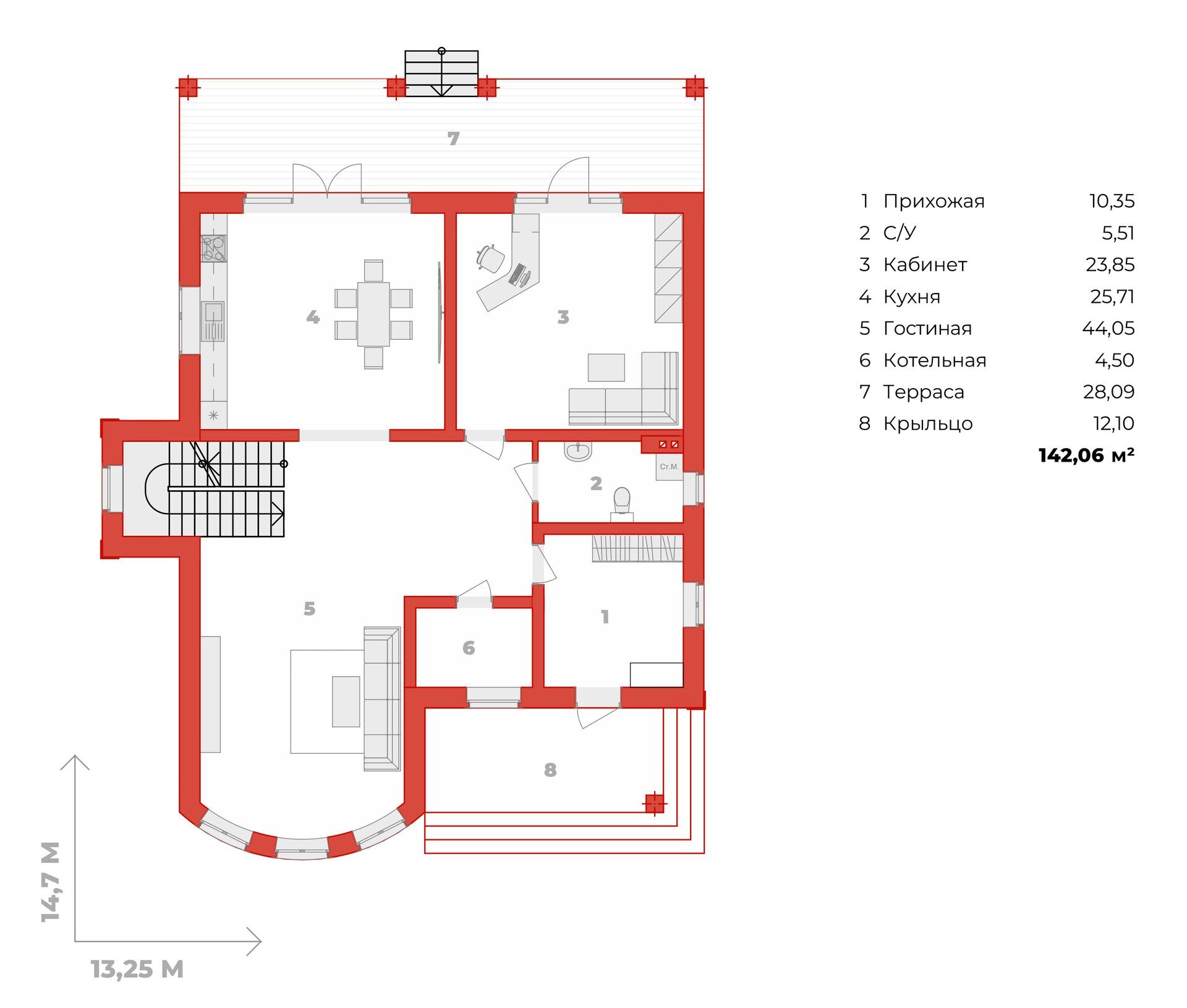
Строительная площадь 389.55 м² 2 санузла 4 спальни Гардероб 2 Поэтажный план Первый этаж 154.16 м² Второй этаж 140.92 м² Бесплатно изменить планировку дома Фасады